第2電波ビル

20.35万円 (1.26万円~1.32万円/坪) 管理/共益費 50,853円~577,335円

東京都千代田区外神田2丁目14-10

山手線「秋葉原」駅徒歩9分

総武線「御茶ノ水」駅徒歩8分

銀座線「末広町」駅徒歩3分

価格
20.35万円(1.26万円~1.32万円/坪) 管理/共益費 50,853円~577,335円
面積
15.41坪~174.95坪(50.97㎡~578.38㎡)
所在地
東京都千代田区外神田2丁目14-10
築年
1962年1月(築63年)
駐車
-
交通

山手線秋葉原」駅 徒歩9分

総武線御茶ノ水」駅 徒歩8分

銀座線末広町」駅 徒歩3分

第2電波ビルの基本情報

物件名
第2電波ビル
価格
20.35万円(1.26万円~1.32万円/坪)
管理/共益費
50,853円~577,335円
築年月
1962年1月(築63年)
所在地
東京都千代田区外神田2丁目14-10
交通

山手線秋葉原」駅 徒歩9分

総武線御茶ノ水」駅 徒歩8分

銀座線末広町」駅 徒歩3分

第2電波ビルの詳細情報

設備条件
  • 機械警備
  • 耐震構造
駐車場/月額
-/-
取引態様
一般媒介

第2電波ビルで募集中の物件

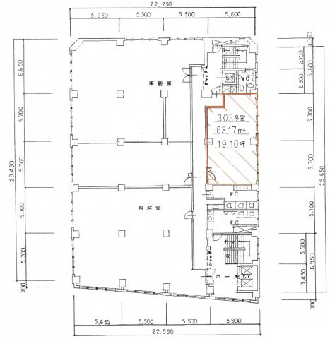
  1. 303号室

    19.10坪 (63.17㎡)

    24.17万円(1.26万円/坪)

  2. 602号室

    36.95坪 (122.17㎡)

    48.78万円(1.32万円/坪)

  3. 601号室

    98.14坪 (324.42㎡)

    129.55万円(1.32万円/坪)

  4. 601号室

    167.23坪 (552.85㎡)

    220.75万円(1.32万円/坪)

  5. 701号室

    58.74坪 (194.19㎡)

    77.54万円(1.32万円/坪)

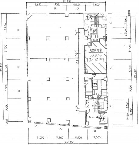
  6. 805号室

    15.41坪 (50.97㎡)

    20.35万円(1.32万円/坪)

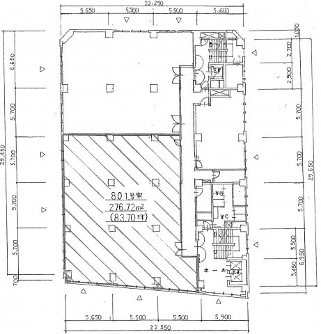
  7. 801号室

    83.70坪 (276.72㎡)

    110.49万円(1.32万円/坪)

  8. 901号室

    174.95坪 (578.38㎡)

    230.94万円(1.32万円/坪)

近隣の物件

  1. 千代田区岩本町1丁目

    - (38.45㎡)

    19.47万円(1.67万円/坪)

  2. 千代田区神田多町2丁目

    - (64.85㎡)

    21.58万円(1.1万円/坪)

  3. 千代田区神田小川町2丁目

    - (33.06㎡)

    13.2万円(1.32万円/坪)

  4. 千代田区九段北1丁目

    - (46.00㎡)

    16.5万円(1.19万円/坪)

第2電波ビル

お気軽にお問い合わせください

LINEからお問い合わせ 無料お問い合わせ

株式会社シンキング

03-6274-8181

9:00~18:00

(休:土日祝)