27件
-
礼0
103.73万円 (2.53万円/坪) 管理/共益費-
5階 / 41.04坪 (135.66㎡) /築45年 /9階建
- エレベーター
- 事務所可
- 機械警備
- 24時間利用可能
赤坂見附駅A出口目前/内装工事費500万円(税込)貸主負担※指定業者利用の場合
-
礼0
即入居可
36.85万円 (3.03万円/坪) 管理/共益費16,500円
10階 / 12.17坪 (40.24㎡) /築3年 /10階建
- バス・トイレ別
- 室内洗濯機置場
- エアコン
- フローリング
- 電気有
- 都市ガス
築浅防音マンション最上階★24時間音出し可!!
動画配信スタジオや音楽教室等に最適です♪ -
敷礼0
即入居可
41.03万円 (2.75万円/坪) 管理/共益費-
1階 / 14.93坪 (49.38㎡) /築3年 /3階建
- 電気有
- 法人可
- 耐震構造
- デザイナーズ
- 事務所可
- 飲食店可
2022年4月竣工後未入居!業種ご相談ください♪
-
即入居可
32.34万円 (1.54万円/坪) 管理/共益費-
3階 / 21.00坪 (69.42㎡) /築39年 /5階建
- エアコン
- 電気有
- 温水洗浄便座
- エレベーター
- 法人可
- 耐震構造
東京メトロ有楽町線「麹町駅」徒歩1分!視認性良好♪
-
即入居可
22万円 (2.07万円/坪) 管理/共益費-
2階 / 10.61坪 (35.09㎡) /築43年 /5階建
- 電気有
- 法人可
- 事務所可
- 24時間利用可能
- 飲食店可
- 軽飲食可
麹町駅徒歩2分!角地!ワンフロアワンテナント♪
-
即入居可
22万円 (1.99万円/坪) 管理/共益費-
3階 / 11.08坪 (36.62㎡) /築43年 /5階建
- 電気有
- 法人可
- 事務所可
- 24時間利用可能
- 飲食店可
- 軽飲食可
麹町駅徒歩2分!角地!ワンフロアワンテナント♪
-
即入居可
25万円 (1.88万円/坪) 管理/共益費-
4-5階 / 13.31坪 (44.02㎡) /築43年 /5階建
- 電気有
- 法人可
- 事務所可
- 24時間利用可能
- 飲食店可
- 軽飲食可
麹町駅徒歩2分!角地!5階は倉庫として最適♪
-
57.2万円 (2.6万円/坪) 管理/共益費33,000円
5階 / 21.99坪 (72.72㎡) /築49年 /5階建
- 室内洗濯機置場
- エアコン
- フローリング
- 電気有
- エレベーター
- 光ファイバー
住居用内装付きの物件です!
床暖房やシャワールーム等、充実の設備が魅力。 -
礼0
177.79万円 (2.97万円/坪) 管理/共益費-
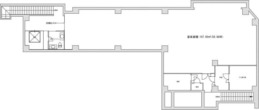
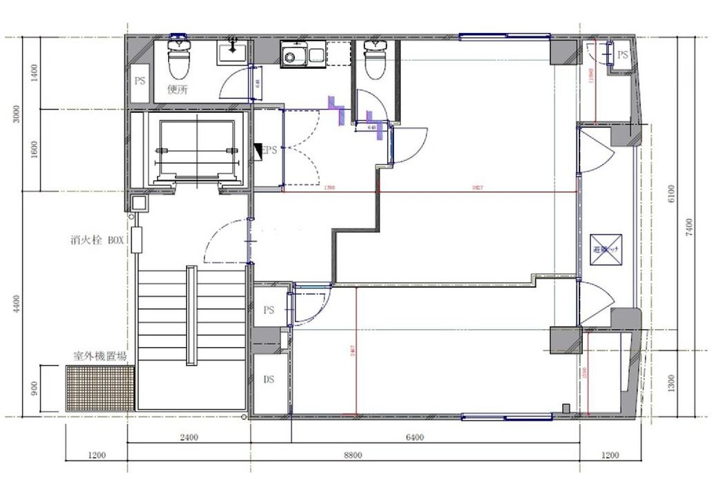
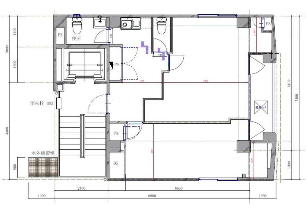
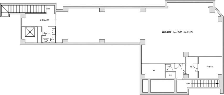
地下1階 / 59.86坪 (197.90㎡) /築3年 /7階建
- エレベーター
- 法人可
- 耐震構造
- 事務所可
- 機械警備
- 軽飲食可
2022年9月末竣工予定!飲食店に最適な地下物件です。
10月末までにご成約のお客様に限り、6カ月間フリーレント! -
礼0
181.60万円 (4.29万円/坪) 管理/共益費-
1階 / 42.33坪 (139.94㎡) /築3年 /7階建
- エアコン
- エレベーター
- 法人可
- 耐震構造
- 事務所可
- 機械警備
2022年9月末竣工予定!物販等に最適な1階店舗です。
10月末までにご成約のお客様に限り、6カ月間フリーレント! -
礼0
32.78万円 (1.86万円/坪) 管理/共益費-
6階 / 17.58坪 (58.12㎡) /築37年 /8階建
- エアコン
- 電気有
- エレベーター
- インターネット対応
- 法人可
- 耐震構造
複数路線利用可能!
1フロア1テナントの事務所居抜き物件です。
-
礼0
即入居可
70.33万円 (2.64万円/坪) 管理/共益費-
1階 / 26.64坪 (88.06㎡) /築29年 /5階建
- エアコン
- 電気有
- エレベーター
- 光ファイバー
- 耐震構造
- トイレ2ヶ所
複数路線使え交通アクセス良好!
室内天井高2,800㎜ある為、開放的な広く見えます。 -
29.49万円 (19670.51円/坪) 管理/共益費40,231円
地下1階 / 14.99坪 (49.58㎡) /築36年 /8階建
- エレベーター
赤坂見附駅徒歩至近の好立地物件です。
-
即入居可
27.43万円 (25323.27円/坪) 管理/共益費-
2階 / 10.83坪 (35.83㎡) /築49年 /5階建
- エアコン
- 電気有
- エレベーター
- トイレ共同
- 機械警備
- 個別空調
「赤坂見附駅」駅前の通り「エスプラナード通り」沿いの好立地!
駅近好立地★お洒落なセットアップオフィスです!!