25件
-
即入居可
7.81万円 (1.12万円/坪) 管理/共益費3,300円
2階 / 6.97坪 (23.05㎡) /築51年 /2階建
- 室内洗濯機置場
- エアコン
- フローリング
- 電気有
- 温水洗浄便座
- コンロ2口以上
内装改築物件!バイク、原付の駐車代が1台無料キャンペーン中!(10/31まで)
-
13.42万円 (1.17万円/坪) 管理/共益費5,500円
2階 / 11.49坪 (38.00㎡) /築50年 /5階建
- 室内洗濯機置場
- エアコン
- フローリング
- 電気有
- コンロ2口以上
- エレベーター
SOHO・事務所利用可♪内装改装済みで室内設備も新品!
-
礼0
即入居可
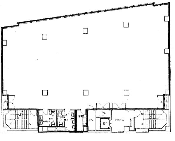
142.09万円 (1.43万円/坪) 管理/共益費-
5階 / 99.36坪 (328.46㎡) /築38年 /8階建
- エアコン
- 温水洗浄便座
- エレベーター
- 陽当り良好
- インターネット対応
- 耐震構造
JRと京急の間の好アクセス物件です。来店型事務所も対応可
環八通り沿い角地に位置する好立地物件です!