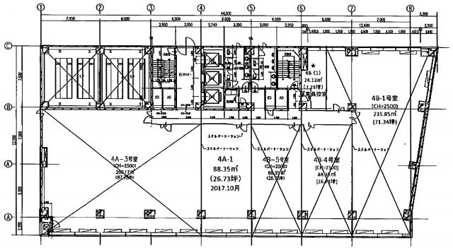
横浜西口Kビル 4A-1

35.28万円(1.32万円/坪)

管理 / 共益費 -

神奈川県横浜市西区北幸2丁目8-19

東急東横線「横浜」駅徒歩8分

京浜東北線「横浜」駅徒歩8分

相鉄本線「平沼橋」駅徒歩10分

賃料 / 坪単価
35.28万円 / 1.32万円
敷金(保証金)
12ヶ月(0ヶ月)
所在地
神奈川県横浜市西区北幸2丁目8-19
交通

東急東横線横浜」駅 徒歩8分

京浜東北線横浜」駅 徒歩8分

相鉄本線平沼橋」駅 徒歩10分

管理 / 共益費
-
礼金
0ヶ月
建物面積
26.72坪(88.35㎡)
築年月
1987年11月(築38年)

セールスポイント

複数路線使用可能な大型のハイグレードオフィスです。

基本情報

保証金
0ヶ月
敷引 / 償却
- / -
建物面積
88.35㎡
所在階 / 階建て
4階 / 9階建
建物構造
鉄骨鉄筋コンクリート
築年月
1987年11月(築38年)
種別
事務所
契約期間
2年
保証会社 / 料金
- / -
現況
空家
入居可能時期
即時
取引条件の
有効期限
2026年02月04日

設備条件

設備条件
  • 陽当り良好 / 事務所可 / 電気有 / 個別空調 / 機械警備 / 男女トイレ別 / トイレ2ヶ所 / トイレ共同 / エアコン / インターネット対応

その他

賃貸区分
一般
保険会社 / 料金
有  / -
取引態様
一般媒介
物件番号
35684958
情報更新日
2026年01月21日
次回更新予定日
2026年02月04日
取扱会社
  • 株式会社シンキング
  • 東京都新宿区新宿5丁目11-25 アソルティ新宿5丁目 2階
  • TEL:03-6274-8181
  • 東京都知事 (2) 第99049号
  • 公益社団法人全国宅地建物取引業協会
備考
指定の保証会社にご加入して頂きます。

横浜西口Kビルの他の物件

  1. 8Bー2

    - (135.14㎡)

    53.95万円(1.32万円/坪)

  2. 9A-4

    - (104.96㎡)

    41.91万円(1.32万円/坪)

近隣の物件

  1. 三石ヨコハマビル

    横浜市西区平沼1丁目

    - (255.10㎡)

    70.86万円(0.92万円/坪)

  2. 横浜O・Tビル

    横浜市西区高島2丁目

    - (92.06㎡)

    36.77万円(1.32万円/坪)

  3. サンシャイン井上

    横浜市西区浅間町1丁目

    - (75.80㎡)

    25.19万円(1.1万円/坪)

  4. 相鉄KSビル

    横浜市西区北幸1丁目

    - (330.16㎡)

    197.75万円(1.98万円/坪)

横浜西口Kビル

横浜西口Kビル

35.28万円

-

26.72坪(88.35㎡)

お気軽にお問い合わせください

LINEからお問い合わせ 無料お問い合わせ

株式会社シンキング

03-6274-8181

9:00~18:00

(休:土日祝)