横浜西口Kビル

35.28万円 (1.32万円/坪) 管理/共益費 0円

神奈川県横浜市西区北幸2丁目8-19

東急東横線「横浜」駅徒歩8分

京浜東北線「横浜」駅徒歩8分

相鉄本線「平沼橋」駅徒歩10分

価格
35.28万円(1.32万円/坪) 管理/共益費 0円
面積
26.72坪~40.87坪(88.35㎡~135.14㎡)
所在地
神奈川県横浜市西区北幸2丁目8-19
築年
1987年11月(築38年)
駐車
-
交通

東急東横線横浜」駅 徒歩8分

京浜東北線横浜」駅 徒歩8分

相鉄本線平沼橋」駅 徒歩10分

横浜西口Kビルの基本情報

物件名
横浜西口Kビル
価格
35.28万円(1.32万円/坪)
管理/共益費
0円
築年月
1987年11月(築38年)
所在地
神奈川県横浜市西区北幸2丁目8-19
交通

東急東横線横浜」駅 徒歩8分

京浜東北線横浜」駅 徒歩8分

相鉄本線平沼橋」駅 徒歩10分

横浜西口Kビルの詳細情報

設備条件
  • 機械警備
  • インターネット対応
駐車場/月額
-/-
取引態様
一般媒介

横浜西口Kビルで募集中の物件

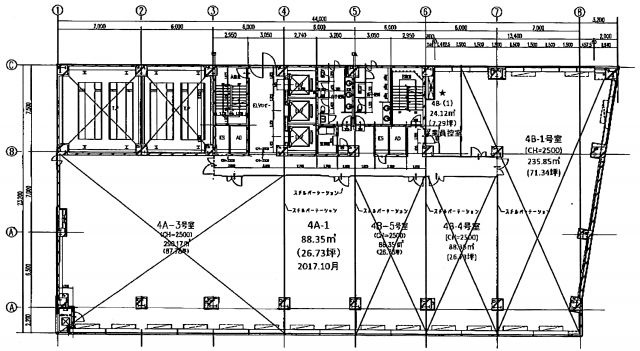
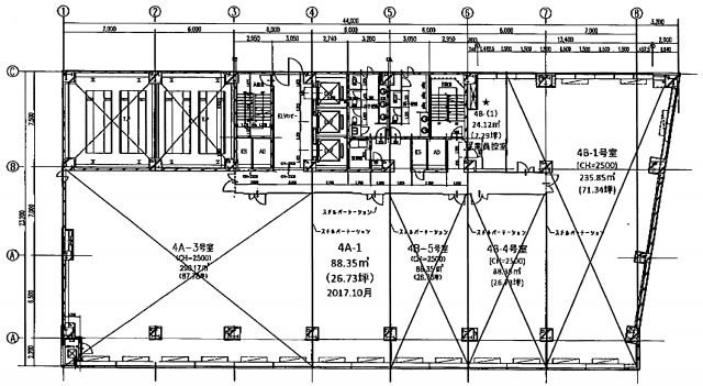
  1. 4A-1

    26.72坪 (88.35㎡)

    35.28万円(1.32万円/坪)

  2. 8Bー2

    40.87坪 (135.14㎡)

    53.95万円(1.32万円/坪)

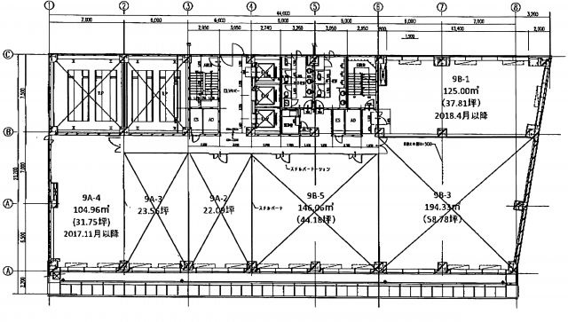
  3. 9A-4

    31.75坪 (104.96㎡)

    41.91万円(1.32万円/坪)

近隣の物件

  1. 横浜市西区平沼1丁目

    - (255.10㎡)

    70.86万円(0.92万円/坪)

  2. 横浜市西区高島2丁目

    - (92.06㎡)

    36.77万円(1.32万円/坪)

  3. 横浜市西区浅間町1丁目

    - (75.80㎡)

    25.19万円(1.1万円/坪)

  4. 横浜市西区北幸1丁目

    - (330.16㎡)

    197.75万円(1.98万円/坪)

横浜西口Kビル

お気軽にお問い合わせください

LINEからお問い合わせ 無料お問い合わせ

株式会社シンキング

03-6274-8181

9:00~18:00

(休:土日祝)