No.R町田北(ナンバーアール町田北) 401号室

34.5万円(1.35万円/坪)

管理 / 共益費 11,000円

東京都町田市中町1丁目1-4

横浜線「町田」駅徒歩4分

小田急小田原線「町田」駅徒歩4分

小田急小田原線「相模大野」駅徒歩25分

賃料 / 坪単価
34.5万円 / 1.35万円
敷金(保証金)
6ヶ月(-)
所在地
東京都町田市中町1丁目1-4
交通

横浜線町田」駅 徒歩4分

小田急小田原線町田」駅 徒歩4分

小田急小田原線相模大野」駅 徒歩25分

管理 / 共益費
11,000円
礼金
1ヶ月
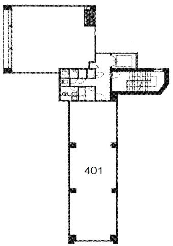
建物面積
25.59坪(84.60㎡)
築年月
1986年1月(築40年)

物件の特徴

  • オートロック

  • エレベーター

セールスポイント

町田街道沿い!町田駅徒歩1分の好立地!業種ご相談ください♪

基本情報

保証金
-
敷引 / 償却
- / -
建物面積
84.60㎡
所在階 / 階建て
4階 / 5階建
建物構造
鉄骨造
築年月
1986年1月(築40年)
種別
店舗事務所
契約期間
定期借家 3年
保証会社 / 料金
- / -
現況
空家
入居可能時期
即時
取引条件の
有効期限
2026年03月16日

設備条件

設備条件
  • 事務所可 / 法人可 / 飲食不可 / 24時間利用可能 / 公営水道 / 公共下水 / エレベーター / 電気有 / 男女トイレ別 / トイレ2ヶ所 / トイレ共同 / オートロック

その他

賃貸区分
定期借家権
保険会社 / 料金
有  / -
取引態様
一般媒介
物件番号
75235192
管理コード
03
情報更新日
2026年03月02日
次回更新予定日
2026年03月16日
取扱会社
  • 株式会社シンキング
  • 東京都新宿区新宿5丁目11-25 アソルティ新宿5丁目 2階
  • TEL:03-6274-8181
  • 東京都知事 (2) 第99049号
  • 公益社団法人全国宅地建物取引業協会
備考
貸主指定の保証会社と保証委託契約を締結して頂く場合がございます
袖看板利用可能(無料)
鍵交換代:13,200円(税込)
夜間オートロックあり

No.R町田北(ナンバーアール町田北)の他の物件

  1. 202号室

    - (69.48㎡)

    32.34万円(1.54万円/坪)

近隣の物件

  1. パーク・メゾン原町田

    町田市原町田5丁目

    - (84.00㎡)

    24万円(0.94万円/坪)

よく見られている物件

  1. サンコービル

    板橋区上板橋2丁目

    - (63.73㎡)

    16.97万円

  2. ASS第3ビル

    豊島区池袋4丁目

    - (50.50㎡)

    11.11万円

  3. サンポウ綜合ビル

    渋谷区神宮前6丁目

    - (230.48㎡)

    766.92万円

  4. 恭和ビル山吹町

    新宿区山吹町

    - (51.43㎡)

    13.86万円

No.R町田北(ナンバーアール町田北)

No.R町田北(ナンバーアール町田北)

34.5万円

11,000円

25.59坪(84.60㎡)

お気軽にお問い合わせください

LINEからお問い合わせ 無料お問い合わせ

株式会社シンキング

03-6274-8181

9:00~18:00

(休:土日祝)