東五反田KBビル 9・10階

70.4万円(1.47万円/坪)

管理 / 共益費 110,000円

東京都品川区東五反田4丁目9-2

山手線「五反田」駅徒歩4分

都営浅草線「五反田」駅徒歩4分

都営浅草線「高輪台」駅徒歩3分

賃料 / 坪単価
70.4万円 / 1.47万円
敷金(保証金)
8ヶ月(-)
所在地
東京都品川区東五反田4丁目9-2
交通

山手線五反田」駅 徒歩4分

都営浅草線五反田」駅 徒歩4分

都営浅草線高輪台」駅 徒歩3分

管理 / 共益費
110,000円
礼金
0ヶ月
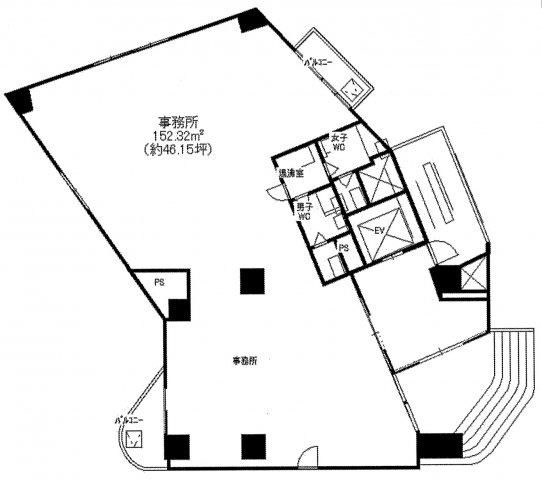
建物面積
47.97坪(158.60㎡)
築年月
1990年4月(築36年)

物件の特徴

  • エレベーター

セールスポイント

五反田駅至近のハイグレードオフィスです。

基本情報

保証金
-
敷引 / 償却
- / 3ヶ月
建物面積
158.60㎡
所在階 / 階建て
9-10階 / 13階建
建物構造
鉄骨鉄筋コンクリート
築年月
1990年4月(築36年)
種別
事務所
契約期間
定期借家 2年
保証会社 / 料金
- / -
現況
空家
入居可能時期
即時
取引条件の
有効期限
2026年04月29日

設備条件

設備条件
  • 陽当り良好 / 事務所可 / 24時間利用可能 / 視認性良好 / 公営水道 / 公共下水 / エレベーター / 電気有 / 個別空調 / 機械警備 / 耐震構造 / 温水洗浄便座 / 男女トイレ別 / トイレ2ヶ所 / エアコン

その他

賃貸区分
定期借家権
更新料
1ヶ月(新賃料)
保険会社 / 料金
有  / -
取引態様
専任媒介
物件番号
57241449
情報更新日
2026年04月15日
次回更新予定日
2026年04月29日
取扱会社
  • 株式会社シンキング
  • 東京都新宿区新宿5丁目11-25 アソルティ新宿5丁目 2階
  • TEL:03-6274-8181
  • 東京都知事 (2) 第99049号
  • 公益社団法人全国宅地建物取引業協会
備考
貸主指定の保証会社と保証委託契約を締結して頂きます。
再契約、途中解約も問題ございません。

東五反田KBビルの他の物件

  1. 2階

    - (152.32㎡)

    66万円(1.43万円/坪)

  2. 3階

    - (179.07㎡)

    82.5万円(1.52万円/坪)

  3. 4階

    - (98.44㎡)

    42.9万円(1.44万円/坪)

  4. 6階

    - (79.43㎡)

    35.2万円(1.47万円/坪)

  5. 9階

    - (79.43㎡)

    35.2万円(1.47万円/坪)

  6. 12階

    - (79.43㎡)

    33万円(1.37万円/坪)

近隣の物件

  1. アイディ品川Ⅲ

    品川区東大井3丁目

    0坪 (90.18㎡)

    22万円(0.81万円/坪)

  2. カノウビル

    品川区西五反田1丁目

    0坪 (107.18㎡)

    42.79万円(1.32万円/坪)

  3. YKビル

    品川区北品川1丁目

    - (19.89㎡)

    6.05万円(1.01万円/坪)

  4. サンブリエ北品川

    品川区北品川1丁目

    - (53.84㎡)

    25.63万円(1.57万円/坪)

よく見られている物件

  1. ル・グラシエルBLDG.2

    港区新橋5丁目

    - (124.99㎡)

    47.83万円

  2. 竹田ビル

    新宿区四谷三栄町

    - (66.12㎡)

    22万円

  3. パンチョスタワー

    新宿区新宿2丁目

    - (30.00㎡)

    15.4万円

  4. 四国第二ビル

    千代田区内神田1丁目

    - (361.16㎡)

    120.18万円

東五反田KBビル

東五反田KBビル

70.4万円

110,000円

47.97坪(158.60㎡)

お気軽にお問い合わせください

LINEからお問い合わせ 無料お問い合わせ

株式会社シンキング

03-6274-8181

9:00~18:00

(休:土日祝)