パインセントラルビル

30.42万円 (1.41万円/坪) 管理/共益費 76,032円

東京都中央区京橋2丁目11-5

都営浅草線「宝町」駅徒歩1分

銀座線「京橋」駅徒歩3分

有楽町線「銀座一丁目」駅徒歩7分

価格
30.42万円(1.41万円/坪) 管理/共益費 76,032円
面積
21.60坪(71.40㎡)
所在地
東京都中央区京橋2丁目11-5
築年
1978年12月(築46年)
駐車
-
交通

都営浅草線宝町」駅 徒歩1分

銀座線京橋」駅 徒歩3分

有楽町線銀座一丁目」駅 徒歩7分

パインセントラルビルの基本情報

物件名
パインセントラルビル
価格
30.42万円(1.41万円/坪)
管理/共益費
76,032円
築年月
1978年12月(築46年)
所在地
東京都中央区京橋2丁目11-5
交通

都営浅草線宝町」駅 徒歩1分

銀座線京橋」駅 徒歩3分

有楽町線銀座一丁目」駅 徒歩7分

パインセントラルビルの詳細情報

設備条件
  • エレベーター
  • 機械警備
  • 光ファイバー
駐車場/月額
-/-
取引態様
一般媒介

パインセントラルビルで募集中の物件

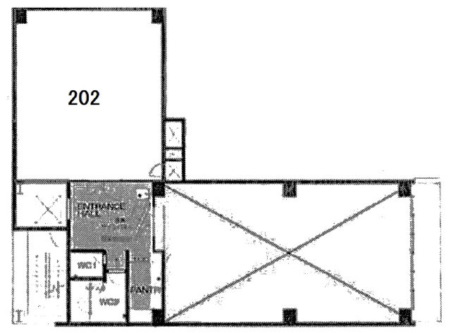
  1. 202号室

    21.60坪 (71.40㎡)

    30.42万円(1.41万円/坪)

近隣の物件

  1. 中央区東日本橋2丁目

    - (190.83㎡)

    53.97万円(0.94万円/坪)

  2. 中央区八重洲2丁目

    - (90.35㎡)

    48.11万円(1.76万円/坪)

  3. 中央区日本橋茅場町3丁目

    - (131.93㎡)

    57.08万円(1.43万円/坪)

  4. 中央区日本橋箱崎町

    - (309.07㎡)

    87.42万円(0.94万円/坪)

パインセントラルビル

お気軽にお問い合わせください

LINEからお問い合わせ 無料お問い合わせ

株式会社シンキング

03-6274-8181

9:00~18:00

(休:土日祝)