PARKWEST(パークウエスト)ビル 1002-1004号室

280.04万円(2.2万円/坪)

管理 / 共益費 560,076円

東京都新宿区西新宿6丁目12-1

山手線「新宿」駅徒歩10分

丸ノ内線「西新宿」駅徒歩3分

都営大江戸線「西新宿五丁目」駅徒歩8分

賃料 / 坪単価
280.04万円 / 2.2万円
敷金(保証金)
10ヶ月(-)
所在地
東京都新宿区西新宿6丁目12-1
交通

山手線新宿」駅 徒歩10分

丸ノ内線西新宿」駅 徒歩3分

都営大江戸線西新宿五丁目」駅 徒歩8分

管理 / 共益費
560,076円
礼金
1ヶ月
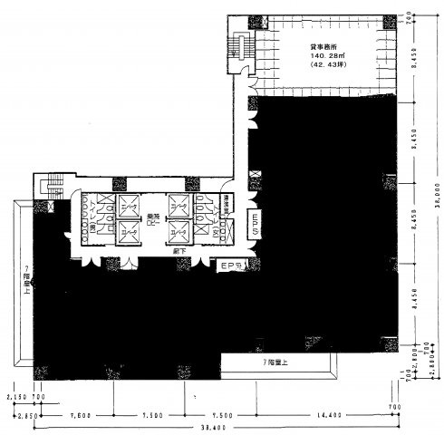
建物面積
127.29坪(420.80㎡)
築年月
1996年6月(築29年)

物件の特徴

  • エレベーター

セールスポイント

インテリジェントビル。
天井高:2,700m

基本情報

保証金
-
敷引 / 償却
- / 1ヶ月
建物面積
420.80㎡
所在階 / 階建て
11階 / 13階建 地下2階
建物構造
鉄骨鉄筋コンクリート
築年月
1996年6月(築29年)
種別
事務所
契約期間
定期借家 2年
保証会社 / 料金
- / -
現況
-
入居可能時期
相談
取引条件の
有効期限
2026年02月26日

設備条件

設備条件
  • 事務所可 / OAフロア / 24時間利用可能 / 公営水道 / 公共下水 / エレベーター / 電気有 / 個別空調 / 耐震構造 / 男女トイレ別 / トイレ2ヶ所 / トイレ共同 / エアコン / 光ファイバー

その他

賃貸区分
定期借家権
更新料
22万円
保険会社 / 料金
有  / -
取引態様
一般媒介
物件番号
100286653
情報更新日
2026年02月12日
次回更新予定日
2026年02月26日
取扱会社
  • 株式会社シンキング
  • 東京都新宿区新宿5丁目11-25 アソルティ新宿5丁目 2階
  • TEL:03-6274-8181
  • 東京都知事 (2) 第99049号
  • 公益社団法人全国宅地建物取引業協会
備考
貸主指定の保証会社と保証委託契約を締結して頂く場合がございます。
入居日:2026/1/末
空調:各階個別。
天井高:2,700m
エントランス開放時間:
月~土7:00~20:00、日祝7:00~19:00

PARKWEST(パークウエスト)ビルの他の物件

  1. 3階 306号室

    - (90.22㎡)

    54.04万円(1.98万円/坪)

  2. 5階507号室

    - (55.82㎡)

    33.43万円(1.98万円/坪)

  3. 508号室

    - (101.12㎡)

    60.57万円(1.98万円/坪)

  4. 603-604号室

    - (289.96㎡)

    173.67万円(1.98万円/坪)

  5. 7階

    - (101.14㎡)

    60.57万円(1.98万円/坪)

  6. 802号室

    - (131.84㎡)

    78.97万円(1.98万円/坪)

  7. 803-804号室

    - (265.88㎡)

    159.26万円(1.98万円/坪)

  8. 802-804号室

    - (397.73㎡)

    238.22万円(1.98万円/坪)

  9. 808号室

    - (103.73㎡)

    62.14万円(1.98万円/坪)

  10. 901-908号室

    - (835.68㎡)

    556.14万円(2.2万円/坪)

  11. 906~908号室

    - (210.18㎡)

    139.88万円(2.2万円/坪)

  12. 901-904号室

    - (561.07㎡)

    373.39万円(2.2万円/坪)

  13. 1005・1006号室

    - (170.32㎡)

    130.35万円(2.53万円/坪)

  14. 1001-1004号室

    - (420.79㎡)

    280.04万円(2.2万円/坪)

  15. 1007-1008号室

    - (120.56㎡)

    80.24万円(2.2万円/坪)

  16. 1001-1004号室

    - (561.07㎡)

    373.39万円(2.2万円/坪)

  17. 1001号室

    - (140.28㎡)

    93.35万円(2.2万円/坪)

  18. 1102-1103号室

    - (280.54㎡)

    186.70万円(2.2万円/坪)

  19. 1102-1104号室

    - (420.80㎡)

    280.04万円(2.2万円/坪)

  20. 1101号室

    - (140.26㎡)

    93.35万円(2.2万円/坪)

  21. 1304・1305・1306号室

    - (308.73㎡)

    184.92万円(1.98万円/坪)

近隣の物件

  1. セイコー四谷

    新宿区四谷1丁目

    21.9坪 (72.40㎡)

    38.55万円(1.76万円/坪)

  2. 四谷ビル

    新宿区四谷2丁目

    - (73.05㎡)

    27.96万円(1.27万円/坪)

  3. コーポ高田

    新宿区高田馬場2丁目

    - (40.00㎡)

    14.85万円(1.23万円/坪)

  4. エスペロビル

    新宿区荒木町

    - (37.90㎡)

    12.1万円(1.06万円/坪)

PARKWEST(パークウエスト)ビル

PARKWEST(パークウエスト)ビル

280.04万円

560,076円

127.29坪(420.80㎡)

お気軽にお問い合わせください

LINEからお問い合わせ 無料お問い合わせ

株式会社シンキング

03-6274-8181

9:00~18:00

(休:土日祝)