飯田橋ハイタウン 217号室

12.1万円(1.25万円/坪)

管理 / 共益費 12,800円

東京都新宿区下宮比町2-28

総武線「飯田橋」駅徒歩5分

都営大江戸線「牛込神楽坂」駅徒歩10分

丸ノ内線「後楽園」駅徒歩11分

賃料 / 坪単価
12.1万円 / 1.25万円
敷金(保証金)
3ヶ月(-)
所在地
東京都新宿区下宮比町2-28
交通

総武線飯田橋」駅 徒歩5分

都営大江戸線牛込神楽坂」駅 徒歩10分

丸ノ内線後楽園」駅 徒歩11分

管理 / 共益費
12,800円
礼金
1ヶ月
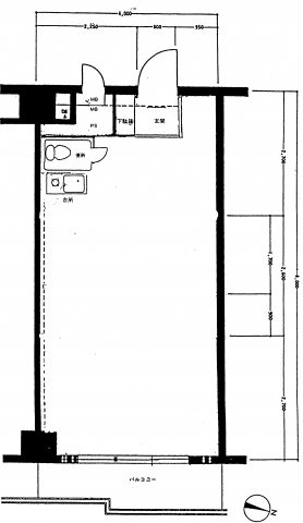
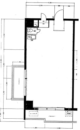
建物面積
9.68坪(32.00㎡)
築年月
1978年8月(築47年)

物件の特徴

  • オートロック

  • エレベーター

セールスポイント

駅から徒歩5分圏内、レイアウトしやすいスクエアタイプのおすすめの物件です。

基本情報

保証金
-
敷引 / 償却
- / -
建物面積
32.00㎡
所在階 / 階建て
2階 / 11階建
建物構造
鉄骨鉄筋コンクリート
築年月
1978年8月(築47年)
種別
事務所
契約期間
2年
保証会社 / 料金
- / -
現況
空家
入居可能時期
即時
取引条件の
有効期限
2026年04月24日

設備条件

設備条件
  • 事務所可 / 飲食不可 / 公営水道 / 公共下水 / エレベーター / 電気有 / 個別空調 / インターネット対応 / オートロック / 24時間有人管理

その他

賃貸区分
一般
保険会社 / 料金
有  / -
取引態様
一般媒介
物件番号
64070030
管理コード
03
情報更新日
2026年04月10日
次回更新予定日
2026年04月24日
取扱会社
  • 株式会社シンキング
  • 東京都新宿区新宿5丁目11-25 アソルティ新宿5丁目 2階
  • TEL:03-6274-8181
  • 東京都知事 (2) 第99049号
  • 公益社団法人全国宅地建物取引業協会
備考
貸主指定の保証会社と保証委託契約を締結して頂く場合がございます

飯田橋ハイタウンの他の物件

  1. 203号室

    - (20.80㎡)

    8.25万円(1.31万円/坪)

  2. 205号室

    - (43.20㎡)

    18.7万円(1.43万円/坪)

  3. 333号室

    - (48.77㎡)

    19.25万円(1.31万円/坪)

  4. 731号室

    - (46.05㎡)

    19.25万円(1.38万円/坪)

  5. 729号室

    - (60.00㎡)

    24.2万円(1.33万円/坪)

  6. 730号室

    - (60.00㎡)

    23.1万円(1.27万円/坪)

  7. 732号室

    - (22.50㎡)

    8.8万円(1.29万円/坪)

  8. 824号室

    - (21.20㎡)

    8.8万円(1.37万円/坪)

  9. 806号室

    - (43.20㎡)

    18.7万円(1.43万円/坪)

  10. 815号室

    - (32.00㎡)

    12.65万円(1.31万円/坪)

  11. 808号室

    - (20.80㎡)

    8.8万円(1.4万円/坪)

  12. 811号室

    - (34.60㎡)

    14.3万円(1.37万円/坪)

近隣の物件

  1. 西新宿STビル

    新宿区西新宿8丁目

    0坪 (40.04㎡)

    18.37万円(1.52万円/坪)

  2. 竹田ビル

    新宿区四谷三栄町

    0坪 (66.12㎡)

    24.2万円(1.21万円/坪)

  3. NKビル

    新宿区四谷4丁目

    0坪 (100.90㎡)

    47.54万円(1.56万円/坪)

  4. ナビウス西新宿

    新宿区西新宿8丁目

    0坪 (43.38㎡)

    36.74万円(2.8万円/坪)

よく見られている物件

  1. ル・グラシエルBLDG.2

    港区新橋5丁目

    - (124.99㎡)

    47.83万円

  2. 竹田ビル

    新宿区四谷三栄町

    - (66.12㎡)

    22万円

  3. パンチョスタワー

    新宿区新宿2丁目

    - (30.00㎡)

    15.4万円

  4. 四国第二ビル

    千代田区内神田1丁目

    - (361.16㎡)

    120.18万円

飯田橋ハイタウン

飯田橋ハイタウン

12.1万円

12,800円

9.68坪(32.00㎡)

お気軽にお問い合わせください

LINEからお問い合わせ 無料お問い合わせ

株式会社シンキング

03-6274-8181

9:00~18:00

(休:土日祝)