新宿区新宿5丁目の店舗一部

635.56万円 (2.75万円/坪) 管理/共益費 0円

東京都新宿区新宿5丁目17-13

山手線「新宿」駅徒歩7分

丸ノ内線「新宿三丁目」駅徒歩3分

西武新宿線「西武新宿」駅徒歩5分

価格
635.56万円(2.75万円/坪) 管理/共益費 0円
面積
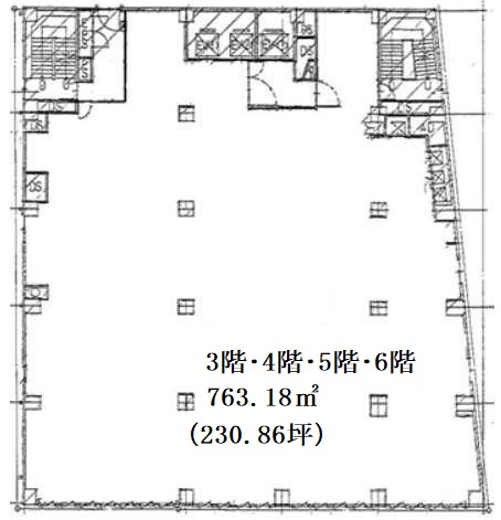
231.11坪~233.23坪(764.00㎡~771.00㎡)
所在地
東京都新宿区新宿5丁目17-13
築年
1974年10月(築51年)
駐車
-
交通

山手線新宿」駅 徒歩7分

丸ノ内線新宿三丁目」駅 徒歩3分

西武新宿線西武新宿」駅 徒歩5分

新宿区新宿5丁目の店舗一部の基本情報

物件名
新宿区新宿5丁目の店舗一部
価格
635.56万円(2.75万円/坪)
管理/共益費
0円
築年月
1974年10月(築51年)
所在地
東京都新宿区新宿5丁目17-13
交通

山手線新宿」駅 徒歩7分

丸ノ内線新宿三丁目」駅 徒歩3分

西武新宿線西武新宿」駅 徒歩5分

新宿区新宿5丁目の店舗一部の詳細情報

設備条件
  • 耐震構造
  • インターネット対応
  • 24時間有人管理
駐車場/月額
-/-
取引態様
一般媒介

新宿区新宿5丁目の店舗一部で募集中の物件

  1. 4階

    233.23坪 (771.00㎡)

    641.39万円(2.75万円/坪)

  2. 5階

    231.11坪 (764.00㎡)

    635.56万円(2.75万円/坪)

近隣の物件

  1. 新宿区新宿7丁目

    - (93.50㎡)

    60.06万円(2.12万円/坪)

  2. 新宿区高田馬場1丁目

    - (324.47㎡)

    421.07万円(4.29万円/坪)

  3. 新宿区揚場町

    - (109.15㎡)

    52.67万円(1.6万円/坪)

  4. 新宿区西新宿6丁目

    - (50.82㎡)

    19.8万円(1.29万円/坪)

よく見られている物件

  1. 板橋区上板橋2丁目

    - (63.73㎡)

    16.97万円

  2. 豊島区池袋4丁目

    - (50.50㎡)

    11.11万円

  3. 渋谷区神宮前6丁目

    - (230.48㎡)

    766.92万円

  4. 新宿区山吹町

    - (51.43㎡)

    13.86万円

新宿区新宿5丁目の店舗一部

お気軽にお問い合わせください

LINEからお問い合わせ 無料お問い合わせ

株式会社シンキング

03-6274-8181

9:00~18:00

(休:土日祝)