千代田ビル 3階

44万円(1.1万円/坪)

管理 / 共益費 44,000円

東京都中央区新川1丁目5-3

東西線「茅場町」駅徒歩3分

京葉線「八丁堀」駅徒歩7分

日比谷線「茅場町」駅徒歩5分

賃料 / 坪単価
44万円 / 1.1万円
敷金(保証金)
0ヶ月(6ヶ月)
所在地
東京都中央区新川1丁目5-3
交通

東西線茅場町」駅 徒歩3分

京葉線八丁堀」駅 徒歩7分

日比谷線茅場町」駅 徒歩5分

管理 / 共益費
44,000円
礼金
0ヶ月
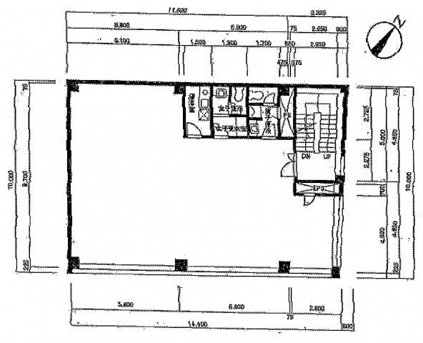
建物面積
40.00坪(132.24㎡)
築年月
1996年7月(築29年)

セールスポイント

エレベーターはございませんが、OA床、個別空調、男女別トイレ、新耐震適合物件ですので、3階までならエレベーターを不要と考えている方でしたら最適物件です。

基本情報

保証金
6ヶ月
敷引 / 償却
- / -
建物面積
132.24㎡
所在階 / 階建て
3階 / 4階建
建物構造
鉄骨鉄筋コンクリート
築年月
1996年7月(築29年)
種別
事務所
契約期間
2年
保証会社 / 料金
- / -
現況
-
入居可能時期
即時
取引条件の
有効期限
2026年03月20日

設備条件

設備条件
  • 事務所可 / OAフロア / 重飲食不可 / 飲食不可 / 24時間利用可能 / 公営水道 / 公共下水 / 電気有 / 個別空調 / 耐震構造 / 男女トイレ別 / トイレ2ヶ所 / エアコン / 光ファイバー

その他

賃貸区分
一般
更新料
0.5ヶ月(新賃料)
保険会社 / 料金
有  / -
取引態様
一般媒介
物件番号
63443631
情報更新日
2026年03月06日
次回更新予定日
2026年03月20日
取扱会社
  • 株式会社シンキング
  • 東京都新宿区新宿5丁目11-25 アソルティ新宿5丁目 2階
  • TEL:03-6274-8181
  • 東京都知事 (2) 第99049号
  • 公益社団法人全国宅地建物取引業協会
備考
館内禁煙。
火災保険加入義務有。

近隣の物件

  1. 初音森ビル

    中央区東日本橋2丁目

    - (190.83㎡)

    53.97万円(0.94万円/坪)

  2. 一新ビル

    中央区八重洲2丁目

    - (90.35㎡)

    48.11万円(1.76万円/坪)

  3. 新富3Tビル

    中央区新富1丁目

    - (81.59㎡)

    35.30万円(1.43万円/坪)

  4. 東成ビルディング

    中央区日本橋箱崎町

    - (309.07㎡)

    87.42万円(0.94万円/坪)

よく見られている物件

  1. ル・グラシエルBLDG.2

    港区新橋5丁目

    - (124.99㎡)

    47.83万円

  2. 竹田ビル

    新宿区四谷三栄町

    - (66.12㎡)

    22万円

  3. パンチョスタワー

    新宿区新宿2丁目

    - (30.00㎡)

    15.4万円

  4. 四国第二ビル

    千代田区内神田1丁目

    - (361.16㎡)

    120.18万円

千代田ビル

千代田ビル

44万円

44,000円

40.00坪(132.24㎡)

お気軽にお問い合わせください

LINEからお問い合わせ 無料お問い合わせ

株式会社シンキング

03-6274-8181

9:00~18:00

(休:土日祝)