オーイズミ東上野ビル 9階 東館

33.97万円(1.1万円/坪)

管理 / 共益費 33,968円

東京都台東区東上野1丁目8-2

山手線「御徒町」駅徒歩4分

山手線「上野」駅徒歩8分

都営大江戸線「新御徒町」駅徒歩2分

賃料 / 坪単価
33.97万円 / 1.1万円
敷金(保証金)
0ヶ月(6ヶ月)
所在地
東京都台東区東上野1丁目8-2
交通

山手線御徒町」駅 徒歩4分

山手線上野」駅 徒歩8分

都営大江戸線新御徒町」駅 徒歩2分

管理 / 共益費
33,968円
礼金
1ヶ月
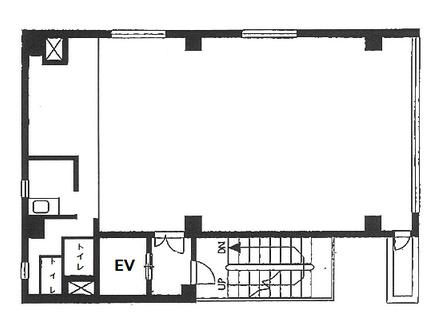
建物面積
30.87坪(102.08㎡)
築年月
1991年1月(築35年)

物件の特徴

  • エレベーター

セールスポイント

会議室等を設けた居抜きでのご入居もご相談可能です。

基本情報

保証金
6ヶ月
敷引 / 償却
- / 1ヶ月
建物面積
102.08㎡
所在階 / 階建て
9階 / 9階建
建物構造
鉄骨鉄筋コンクリート
築年月
1991年1月(築35年)
種別
事務所
契約期間
定期借家 1年
保証会社 / 料金
- / -
現況
空家
入居可能時期
即時
取引条件の
有効期限
2026年04月29日

設備条件

設備条件
  • 陽当り良好 / 事務所可 / 24時間利用可能 / 視認性良好 / エレベーター / 個別空調 / 機械警備 / 耐震構造 / 温水洗浄便座 / 男女トイレ別 / トイレ2ヶ所 / エアコン / インターネット対応

その他

賃貸区分
定期借家権
更新料
1ヶ月(新賃料)
保険会社 / 料金
有  / -
取引態様
専任媒介
物件番号
40664591
管理コード
01日江井
情報更新日
2026年04月15日
次回更新予定日
2026年04月29日
取扱会社
  • 株式会社シンキング
  • 東京都新宿区新宿5丁目11-25 アソルティ新宿5丁目 2階
  • TEL:03-6274-8181
  • 東京都知事 (2) 第99049号
  • 公益社団法人全国宅地建物取引業協会
備考
指定の保証会社にご加入して頂きます。途中解約も可能となっております。
再契約原則不可

オーイズミ東上野ビルの他の物件

  1. 6階B 西館

    - (57.25㎡)

    19.06万円(1.1万円/坪)

  2. 西館 8階AB

    - (197.42㎡)

    59.13万円(0.99万円/坪)

  3. 西館 8A

    - (140.16㎡)

    46.64万円(1.1万円/坪)

  4. 東館 8階

    - (102.08㎡)

    33.97万円(1.1万円/坪)

近隣の物件

  1. I LIVE FOREST(アイリブフォレスト)

    台東区台東4丁目

    0坪 (50.11㎡)

    24.64万円(1.63万円/坪)

  2. テンフィールドビル

    台東区浅草7丁目

    0坪 (28.80㎡)

    9.68万円(1.11万円/坪)

  3. 北條ビル

    台東区蔵前2丁目

    0坪 (52.89㎡)

    11.55万円(0.72万円/坪)

  4. リードシー浅草橋ビル

    台東区浅草橋2丁目

    0坪 (138.77㎡)

    87.72万円(2.09万円/坪)

よく見られている物件

  1. ル・グラシエルBLDG.2

    港区新橋5丁目

    - (124.99㎡)

    47.83万円

  2. 竹田ビル

    新宿区四谷三栄町

    - (66.12㎡)

    22万円

  3. パンチョスタワー

    新宿区新宿2丁目

    - (30.00㎡)

    15.4万円

  4. 四国第二ビル

    千代田区内神田1丁目

    - (361.16㎡)

    120.18万円

オーイズミ東上野ビル

オーイズミ東上野ビル

33.97万円

33,968円

30.87坪(102.08㎡)

お気軽にお問い合わせください

LINEからお問い合わせ 無料お問い合わせ

株式会社シンキング

03-6274-8181

9:00~18:00

(休:土日祝)