ICA3ビル

12.32万円 (0.6万円~0.63万円/坪) 管理/共益費 11,000円

東京都中央区東日本橋3丁目4-6

都営新宿線「馬喰横山」駅徒歩2分

総武本線「馬喰町」駅徒歩3分

都営浅草線「東日本橋」駅徒歩3分

価格
12.32万円(0.6万円~0.63万円/坪) 管理/共益費 11,000円
面積
19.66坪~22.95坪(65.00㎡~75.88㎡)
所在地
東京都中央区東日本橋3丁目4-6
築年
1959年5月(築66年)
駐車
-
交通

都営新宿線馬喰横山」駅 徒歩2分

総武本線馬喰町」駅 徒歩3分

都営浅草線東日本橋」駅 徒歩3分

ICA3ビルの基本情報

物件名
ICA3ビル
価格
12.32万円(0.6万円~0.63万円/坪)
管理/共益費
11,000円
築年月
1959年5月(築66年)
所在地
東京都中央区東日本橋3丁目4-6
交通

都営新宿線馬喰横山」駅 徒歩2分

総武本線馬喰町」駅 徒歩3分

都営浅草線東日本橋」駅 徒歩3分

ICA3ビルの詳細情報

設備条件
  • インターネット対応
駐車場/月額
-/-
取引態様
専任媒介

ICA3ビルで募集中の物件

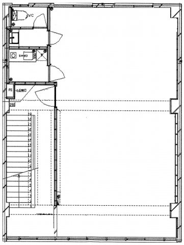
  1. 2階ウエスト

    19.66坪 (65.00㎡)

    12.32万円(0.63万円/坪)

  2. 2階イースト

    22.95坪 (75.88㎡)

    13.86万円(0.6万円/坪)

近隣の物件

  1. 中央区日本橋茅場町1丁目

    - (61.68㎡)

    65.72万円(3.52万円/坪)

  2. 中央区銀座4丁目

    - (96.46㎡)

    80.25万円(2.75万円/坪)

  3. 中央区東日本橋1丁目

    - (61.29㎡)

    23.1万円(1.25万円/坪)

  4. 中央区銀座3丁目

    - (50.61㎡)

    37.06万円(2.42万円/坪)

ICA3ビル

お気軽にお問い合わせください

LINEからお問い合わせ 無料お問い合わせ

株式会社シンキング

03-6274-8181

9:00~18:00

(休:土日祝)