三木ビル

42.29万円 (0.81万円~0.88万円/坪)

管理/共益費 105,722円~114,180円

東京都台東区北上野1丁目8-3

山手線「上野」駅徒歩7分

日比谷線「入谷」駅徒歩5分

銀座線「稲荷町」駅徒歩8分

価格
42.29万円(0.81万円~0.88万円/坪) 管理/共益費 105,722円~114,180円
面積
49.89坪~51.89坪(164.95㎡~171.57㎡)
所在地
東京都台東区北上野1丁目8-3
築年
1989年9月(築36年)
駐車
-
交通

山手線上野」駅 徒歩7分

日比谷線入谷」駅 徒歩5分

銀座線稲荷町」駅 徒歩8分

三木ビルの基本情報

物件名
三木ビル
価格
42.29万円(0.81万円~0.88万円/坪)
管理/共益費
105,722円~114,180円
築年月
1989年9月(築36年)
所在地
東京都台東区北上野1丁目8-3
交通

山手線上野」駅 徒歩7分

日比谷線入谷」駅 徒歩5分

銀座線稲荷町」駅 徒歩8分

三木ビルの詳細情報

設備条件
  • エレベーター
  • 耐震構造
  • インターネット対応
駐車場/月額
-/-
取引態様
一般媒介

三木ビルで募集中の物件

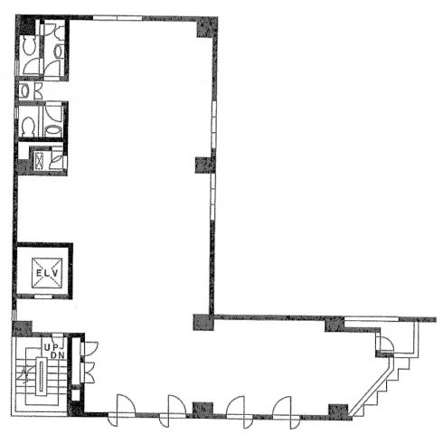
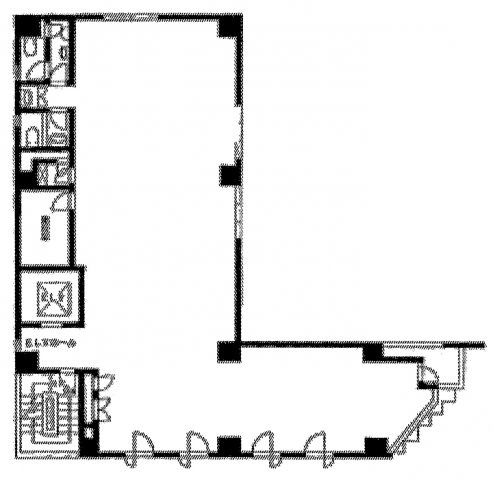
  1. 4階

    51.89坪 (171.57㎡)

    45.68万円(8801.7円/坪)

  2. 7階

    51.89坪 (171.57㎡)

    42.29万円(8149.72円/坪)

  3. 8階

    49.89坪 (164.95㎡)

    43.92万円(8801.84円/坪)

近隣の物件

  1. 台東区台東4丁目

    0坪 (50.11㎡)

    24.64万円(1.63万円/坪)

  2. 台東区浅草7丁目

    0坪 (28.80㎡)

    9.68万円(1.11万円/坪)

  3. 台東区蔵前2丁目

    0坪 (52.89㎡)

    11.55万円(0.72万円/坪)

  4. 台東区浅草橋2丁目

    0坪 (138.77㎡)

    87.72万円(2.09万円/坪)

よく見られている物件

  1. 港区新橋5丁目

    - (124.99㎡)

    47.83万円

  2. 新宿区四谷三栄町

    - (66.12㎡)

    22万円

  3. 新宿区新宿2丁目

    - (30.00㎡)

    15.4万円

  4. 千代田区内神田1丁目

    - (361.16㎡)

    120.18万円

三木ビル

お気軽にお問い合わせください

LINEからお問い合わせ 無料お問い合わせ

株式会社シンキング

03-6274-8181

9:00~18:00

(休:土日祝)