パークウエストビル

52.55万円 (1.63万円~2.2万円/坪) 管理/共益費 116,776円~532,092円

東京都新宿区西新宿6丁目12-1

山手線「新宿」駅徒歩10分

丸ノ内線「西新宿」駅徒歩3分

都営大江戸線「西新宿五丁目」駅徒歩9分

価格
52.55万円(1.63万円~2.2万円/坪) 管理/共益費 116,776円~532,092円
面積
26.54坪~120.93坪(87.73㎡~399.78㎡)
所在地
東京都新宿区西新宿6丁目12-1
築年
1996年6月(築29年)
駐車
-
交通

山手線新宿」駅 徒歩10分

丸ノ内線西新宿」駅 徒歩3分

都営大江戸線西新宿五丁目」駅 徒歩9分

パークウエストビルの基本情報

物件名
パークウエストビル
価格
52.55万円(1.63万円~2.2万円/坪)
管理/共益費
116,776円~532,092円
築年月
1996年6月(築29年)
所在地
東京都新宿区西新宿6丁目12-1
交通

山手線新宿」駅 徒歩10分

丸ノ内線西新宿」駅 徒歩3分

都営大江戸線西新宿五丁目」駅 徒歩9分

パークウエストビルの詳細情報

設備条件
  • エレベーター
  • 機械警備
  • 耐震構造
  • インターネット対応
  • 24時間有人管理
駐車場/月額
-/-
取引態様
一般媒介

パークウエストビルで募集中の物件

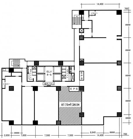
  1. 405号室

    26.54坪 (87.74㎡)

    52.55万円(1.98万円/坪)

  2. 7階

    26.54坪 (87.73㎡)

    52.55万円(1.98万円/坪)

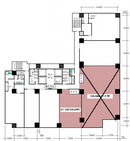
  3. 7階

    87.71坪 (289.96㎡)

    173.67万円(1.98万円/坪)

  4. 806号室

    28.02坪 (92.63㎡)

    55.48万円(1.98万円/坪)

  5. 1102-1103号室

    80.91坪 (267.50㎡)

    131.87万円(16298.31円/坪)

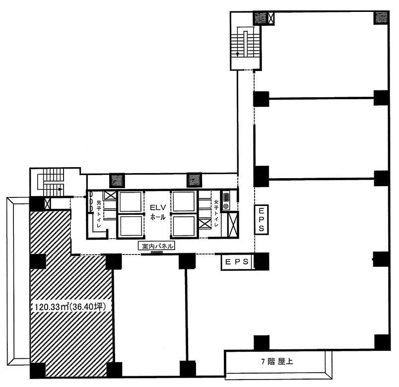
  6. 1307・1308号室

    36.40坪 (120.34㎡)

    72.08万円(1.98万円/坪)

  7. 1301-1303号室

    120.93坪 (399.78㎡)

    266.05万円(2.2万円/坪)

近隣の物件

  1. 新宿区新宿1丁目

    - (142.54㎡)

    66.39万円(1.54万円/坪)

  2. 新宿区四谷坂町

    - (54.24㎡)

    25.08万円(1.53万円/坪)

  3. 新宿区四谷1丁目

    21.9坪 (72.40㎡)

    38.55万円(1.76万円/坪)

  4. 新宿区高田馬場2丁目

    - (40.00㎡)

    14.85万円(1.23万円/坪)

よく見られている物件

  1. 港区新橋5丁目

    - (124.99㎡)

    47.83万円

  2. 新宿区四谷三栄町

    - (66.12㎡)

    22万円

  3. 新宿区新宿2丁目

    - (30.00㎡)

    15.4万円

  4. 千代田区内神田1丁目

    - (361.16㎡)

    120.18万円

パークウエストビル

お気軽にお問い合わせください

LINEからお問い合わせ 無料お問い合わせ

株式会社シンキング

03-6274-8181

9:00~18:00

(休:土日祝)