AUBE新川ビル 8階

32.07万円(1.54万円/坪)

管理 / 共益費 68,706円

東京都中央区新川2丁目18-10

京葉線「八丁堀」駅徒歩2分

東西線「茅場町」駅徒歩7分

都営浅草線「宝町」駅徒歩10分

賃料 / 坪単価
32.07万円 / 1.54万円
敷金(保証金)
0ヶ月(6ヶ月)
所在地
東京都中央区新川2丁目18-10
交通

京葉線八丁堀」駅 徒歩2分

東西線茅場町」駅 徒歩7分

都営浅草線宝町」駅 徒歩10分

管理 / 共益費
68,706円
礼金
0ヶ月
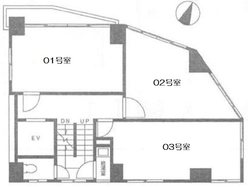
建物面積
20.82坪(68.83㎡)
築年月
1974年9月(築51年)

物件の特徴

  • オートロック

  • エレベーター

セールスポイント

8階は人気のOA床になっております。
各階男女別トイレ

基本情報

保証金
6ヶ月
敷引 / 償却
- / -
建物面積
68.83㎡
所在階 / 階建て
8階 / 11階建
建物構造
鉄骨鉄筋コンクリート
築年月
1974年9月(築51年)
種別
事務所
契約期間
定期借家 10年
保証会社 / 料金
- / -
現況
空家
入居可能時期
即時
取引条件の
有効期限
2026年04月28日

設備条件

設備条件
  • 事務所可 / 法人可 / OAフロア / 重飲食不可 / 飲食不可 / 24時間利用可能 / 公営水道 / 公共下水 / エレベーター / 電気有 / 個別空調 / 温水洗浄便座 / 男女トイレ別 / トイレ2ヶ所 / トイレ共同 / エアコン / オートロック

その他

賃貸区分
定期借家権
更新料
0ヶ月(新賃料)
保険会社 / 料金
有  / -
取引態様
一般媒介
物件番号
63647420
情報更新日
2026年04月14日
次回更新予定日
2026年04月28日
取扱会社
  • 株式会社シンキング
  • 東京都新宿区新宿5丁目11-25 アソルティ新宿5丁目 2階
  • TEL:03-6274-8181
  • 東京都知事 (2) 第99049号
  • 公益社団法人全国宅地建物取引業協会
備考
貸主指定の保証会社と保証委託契約を締結して頂く場合がございます
契約開始日から2年以内の解約不可。
それ以降の解約は6ヶ月前予告になります。
8階は人気のOA床になっております。
各階男女別トイレ
エントランス開閉時間:7~21時
レンタルスペース・貸会議室・飲食・民泊不可
※ご契約時に仲介手数料として成約賃料の1ヶ月分及び消費税を申し受けます

AUBE新川ビルの他の物件

  1. 201号室

    - (22.19㎡)

    9.97万円(1.48万円/坪)

  2. 902号室

    - (22.35㎡)

    10.04万円(1.49万円/坪)

近隣の物件

  1. 初音森ビル

    中央区東日本橋2丁目

    - (190.83㎡)

    53.97万円(0.94万円/坪)

  2. 一新ビル

    中央区八重洲2丁目

    - (90.35㎡)

    48.11万円(1.76万円/坪)

  3. 白鷺ビル

    中央区日本橋茅場町3丁目

    0坪 (98.00㎡)

    39.14万円(1.32万円/坪)

  4. セルバ人形町

    中央区日本橋人形町2丁目

    0坪 (236.42㎡)

    90.47万円(1.26万円/坪)

よく見られている物件

  1. ル・グラシエルBLDG.2

    港区新橋5丁目

    - (124.99㎡)

    47.83万円

  2. 竹田ビル

    新宿区四谷三栄町

    - (66.12㎡)

    22万円

  3. パンチョスタワー

    新宿区新宿2丁目

    - (30.00㎡)

    15.4万円

  4. 四国第二ビル

    千代田区内神田1丁目

    - (361.16㎡)

    120.18万円

AUBE新川ビル

AUBE新川ビル

32.07万円

68,706円

20.82坪(68.83㎡)

お気軽にお問い合わせください

LINEからお問い合わせ 無料お問い合わせ

株式会社シンキング

03-6274-8181

9:00~18:00

(休:土日祝)