恭和ビル山吹町

13.86万円 (0.89万円/坪) 管理/共益費 2,200円

東京都新宿区山吹町350

有楽町線「江戸川橋」駅徒歩9分

東西線「早稲田」駅徒歩12分

東西線「神楽坂」駅徒歩13分

価格
13.86万円(0.89万円/坪) 管理/共益費 2,200円
面積
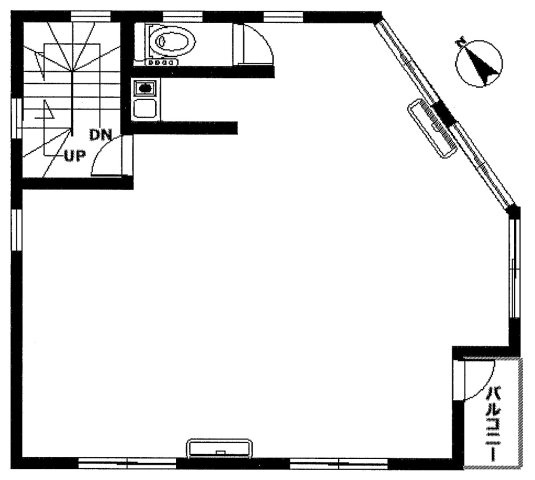
15.55坪(51.43㎡)
所在地
東京都新宿区山吹町350
築年
1986年6月(築39年)
駐車
-
交通

有楽町線江戸川橋」駅 徒歩9分

東西線早稲田」駅 徒歩12分

東西線神楽坂」駅 徒歩13分

恭和ビル山吹町の基本情報

物件名
恭和ビル山吹町
価格
13.86万円(0.89万円/坪)
管理/共益費
2,200円
築年月
1986年6月(築39年)
所在地
東京都新宿区山吹町350
交通

有楽町線江戸川橋」駅 徒歩9分

東西線早稲田」駅 徒歩12分

東西線神楽坂」駅 徒歩13分

恭和ビル山吹町の詳細情報

設備条件
  • 路面店
  • 耐震構造
駐車場/月額
-/-
取引態様
一般媒介

恭和ビル山吹町で募集中の物件

  1. 3階

    15.55坪 (51.43㎡)

    13.86万円(0.89万円/坪)

近隣の物件

  1. 新宿区新宿7丁目

    - (93.50㎡)

    60.06万円(2.12万円/坪)

  2. 新宿区高田馬場1丁目

    - (324.47㎡)

    421.07万円(4.29万円/坪)

  3. 新宿区揚場町

    - (109.15㎡)

    52.67万円(1.6万円/坪)

  4. 新宿区西新宿6丁目

    - (50.82㎡)

    19.8万円(1.29万円/坪)

よく見られている物件

  1. 板橋区上板橋2丁目

    - (63.73㎡)

    16.97万円

  2. 豊島区池袋4丁目

    - (50.50㎡)

    11.11万円

  3. 渋谷区神宮前6丁目

    - (230.48㎡)

    766.92万円

  4. 新宿区山吹町

    - (51.43㎡)

    13.86万円

恭和ビル山吹町

お気軽にお問い合わせください

LINEからお問い合わせ 無料お問い合わせ

株式会社シンキング

03-6274-8181

9:00~18:00

(休:土日祝)