T-CROSS中目黒 2・3階+屋上

99万円(1.81万円/坪)

管理 / 共益費 -

東京都目黒区上目黒1丁目8-29

日比谷線「中目黒」駅徒歩4分

東急東横線「中目黒」駅徒歩4分

東急東横線「代官山」駅徒歩7分

賃料 / 坪単価
99万円 / 1.81万円
敷金(保証金)
198万円(-)
間取り
3LDK
向き
南東
所在地
東京都目黒区上目黒1丁目8-29
交通

日比谷線中目黒」駅 徒歩4分

東急東横線中目黒」駅 徒歩4分

東急東横線代官山」駅 徒歩7分

管理 / 共益費
-
礼金
0ヶ月
建物面積
54.74坪(180.99㎡)
築年月
1996年2月(築30年)

物件の特徴

  • バストイレ別

  • 室内洗濯機置場

セールスポイント

ドライサウナ・駐車場・屋上付きの3LDK!事務所利用可♪

基本情報

保証金
-
敷引 / 償却
- / -
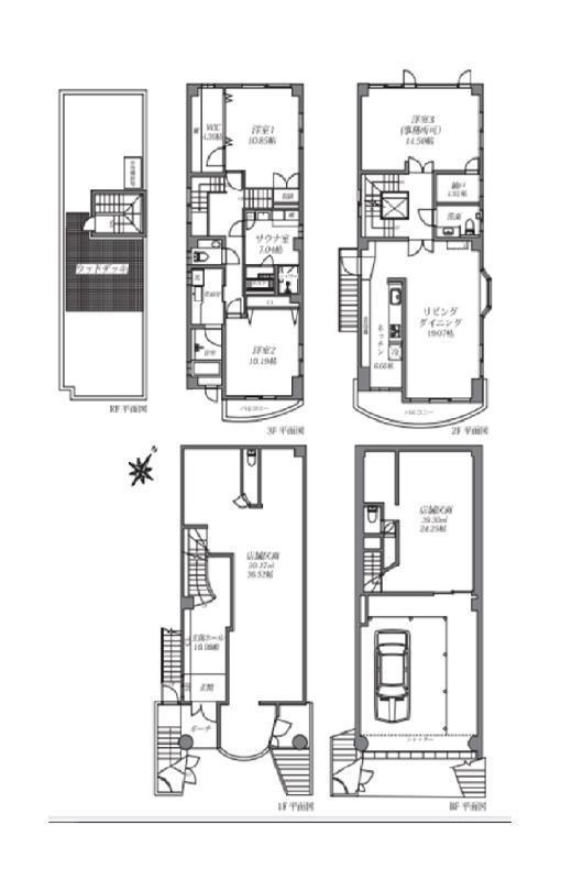
間取り / 詳細
3LDK
洋室10.8帖+洋室10.2帖+洋室14.5帖+LDK25.7帖
向き
南東
建物面積
180.99㎡
所在階 / 階建て
2-3階 / 3階建
建物構造
鉄筋コンクリート
築年月
1996年2月(築30年)
種別
事務所
契約期間
定期借家 5年
保証会社 / 料金
- / -
現況
空家
入居可能時期
即時
取引条件の
有効期限
2026年02月27日

設備条件

設備条件
  • ペット相談 / ペット飼育可 / 事務所可 / 法人可 / 飲食不可 / 視認性良好 / 室内洗濯機置場 / フローリング / 公営水道 / 公共下水 / 電気有 / 個別空調 / 耐震構造 / ガスコンロ / コンロ2口以上 / コンロ3口 / バス・トイレ別 / 温水洗浄便座 / トイレ2ヶ所 / エアコン

その他

賃貸区分
定期借家権
更新料
1ヶ月(新賃料)
保険会社 / 料金
有  / -
取引態様
一般媒介
物件番号
84545969
管理コード
02/03
情報更新日
2026年02月13日
次回更新予定日
2026年02月27日
取扱会社
  • 株式会社シンキング
  • 東京都新宿区新宿5丁目11-25 アソルティ新宿5丁目 2階
  • TEL:03-6274-8181
  • 東京都知事 (2) 第99049号
  • 公益社団法人全国宅地建物取引業協会
備考
■貸主指定の保証会社加入必須(エポス)
■短期解約違約金:1年未満解約時違約金1ヶ月
■サポート24:22,000円(税込)/2年間
■住宅保険料:18,000円
■ペット飼育相談OK(敷金1ヶ月追加)(犬/猫1匹まで)
■2024年3月リノベーション工事完了予定
■SOHO利用可能
■民泊・レンタルスペース不可

近隣の物件

  1. イソラ中目黒

    目黒区祐天寺1丁目

    - (69.06㎡)

    45.96万円(2.2万円/坪)

  2. ビラ・アペックスタワー

    目黒区東山2丁目

    - (132.23㎡)

    74.8万円(1.87万円/坪)

  3. マートルコート中目黒第2

    目黒区中目黒1丁目

    - (22.86㎡)

    9.9万円(1.43万円/坪)

  4. 西村ビル

    目黒区上目黒3丁目

    - (102.95㎡)

    51.39万円(1.65万円/坪)

T-CROSS中目黒

T-CROSS中目黒

99万円

-

54.74坪(180.99㎡)

お気軽にお問い合わせください

LINEからお問い合わせ 無料お問い合わせ

株式会社シンキング

03-6274-8181

9:00~18:00

(休:土日祝)