兜町偕成ビル別館

149.22万円 (1.59万円/坪) 管理/共益費 360,168円

東京都中央区日本橋兜町13-1

東西線「茅場町」駅徒歩1分

都営浅草線「日本橋」駅徒歩3分

日比谷線「茅場町」駅徒歩5分

価格
149.22万円(1.59万円/坪) 管理/共益費 360,168円
面積
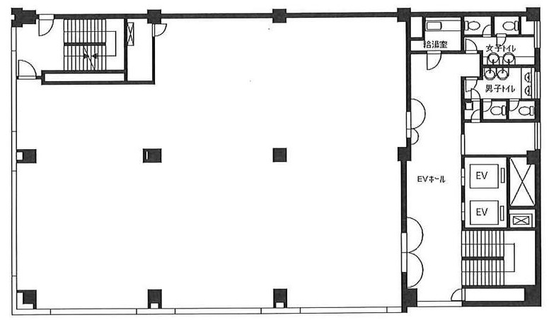
93.55坪(309.26㎡)
所在地
東京都中央区日本橋兜町13-1
築年
1961年4月(築64年)
駐車
-
交通

東西線茅場町」駅 徒歩1分

都営浅草線日本橋」駅 徒歩3分

日比谷線茅場町」駅 徒歩5分

兜町偕成ビル別館の基本情報

物件名
兜町偕成ビル別館
価格
149.22万円(1.59万円/坪)
管理/共益費
360,168円
築年月
1961年4月(築64年)
所在地
東京都中央区日本橋兜町13-1
交通

東西線茅場町」駅 徒歩1分

都営浅草線日本橋」駅 徒歩3分

日比谷線茅場町」駅 徒歩5分

兜町偕成ビル別館の詳細情報

設備条件
  • エレベーター
  • 機械警備
  • 耐震構造
  • インターネット対応
駐車場/月額
-/-
取引態様
一般媒介

兜町偕成ビル別館で募集中の物件

  1. 7階

    93.55坪 (309.26㎡)

    149.22万円(1.59万円/坪)

近隣の物件

  1. 中央区東日本橋2丁目

    - (190.83㎡)

    53.97万円(0.94万円/坪)

  2. 中央区八重洲2丁目

    - (90.35㎡)

    48.11万円(1.76万円/坪)

  3. 中央区日本橋3丁目

    - (96.72㎡)

    56.3万円(1.92万円/坪)

  4. 中央区新川2丁目

    - (66.09㎡)

    41.8万円(2.09万円/坪)

兜町偕成ビル別館

お気軽にお問い合わせください

LINEからお問い合わせ 無料お問い合わせ

株式会社シンキング

03-6274-8181

9:00~18:00

(休:土日祝)