港区麻布十番2丁目の店舗一部 6階

46.14万円(3.3万円/坪)

管理 / 共益費 61,512円

東京都港区麻布十番2丁目8-8

南北線「麻布十番」駅徒歩3分

日比谷線「六本木」駅徒歩10分

都営大江戸線「赤羽橋」駅徒歩10分

賃料 / 坪単価
46.14万円 / 3.3万円
敷金(保証金)
0ヶ月(10ヶ月)
所在地
東京都港区麻布十番2丁目8-8
交通

南北線麻布十番」駅 徒歩3分

日比谷線六本木」駅 徒歩10分

都営大江戸線赤羽橋」駅 徒歩10分

管理 / 共益費
61,512円
礼金
1ヶ月
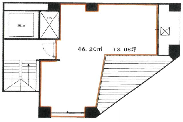
建物面積
13.97坪(46.21㎡)
築年月
2000年9月(築25年)

物件の特徴

  • オートロック

  • エレベーター

セールスポイント

ネイル&エステサロン居抜き店舗!
天井はコンクリート打放しでお洒落な室内です

基本情報

保証金
10ヶ月
敷引 / 償却
- / 20.00%
建物面積
46.21㎡
所在階 / 階建て
6階 / 8階建 地下1階
建物構造
鉄骨鉄筋コンクリート
築年月
2000年9月(築25年)
種別
店舗一部
契約期間
2年
保証会社 / 料金
- / -
現況
空家
入居可能時期
即時
取引条件の
有効期限
2026年02月20日

設備条件

設備条件
  • 重飲食不可 / 軽飲食可 / エレベーター / 耐震構造 / オートロック

その他

賃貸区分
一般
更新料
1ヶ月(新賃料)
保険会社 / 料金
有  / -
取引態様
一般媒介
物件番号
51645699
管理コード
03
情報更新日
2026年02月06日
次回更新予定日
2026年02月20日
取扱会社
  • 株式会社シンキング
  • 東京都新宿区新宿5丁目11-25 アソルティ新宿5丁目 2階
  • TEL:03-6274-8181
  • 東京都知事 (2) 第99049号
  • 公益社団法人全国宅地建物取引業協会
備考
■貸主指定の保証会社と保証委託契約を締結して頂きます
■現況と図面が異なる場合には現況を優先します
■ご契約時に仲介手数料として成約賃料の1ヶ月分及び消費税を申し受けます

近隣の物件

  1. リヨンドール赤坂

    港区赤坂9丁目

    - (19.76㎡)

    14.3万円(2.4万円/坪)

  2. ヴィラ三田村

    港区麻布台2丁目

    - (48.60㎡)

    17.6万円(1.2万円/坪)

  3. AIBA SHIMBASHI TOWER(愛場新橋タワー)

    港区新橋4丁目

    - (90.05㎡)

    119.86万円(4.4万円/坪)

  4. 六本木三幸ビル

    港区六本木3丁目

    - (157.25㎡)

    183.15万円(3.85万円/坪)

港区麻布十番2丁目の店舗一部

港区麻布十番2丁目の店舗一部

46.14万円

61,512円

13.97坪(46.21㎡)

お気軽にお問い合わせください

LINEからお問い合わせ 無料お問い合わせ

株式会社シンキング

03-6274-8181

9:00~18:00

(休:土日祝)