新横浜KSビル 903号室

50.92万円(1.1万円/坪)

管理 / 共益費 152,757円

神奈川県横浜市港北区新横浜3丁目18-3

横浜線「新横浜」駅徒歩3分

ブルーライン「新横浜」駅徒歩2分

横浜線「菊名」駅徒歩15分

賃料 / 坪単価
50.92万円 / 1.1万円
敷金(保証金)
12ヶ月(0ヶ月)
所在地
神奈川県横浜市港北区新横浜3丁目18-3
交通

横浜線新横浜」駅 徒歩3分

ブルーライン新横浜」駅 徒歩2分

横浜線菊名」駅 徒歩15分

管理 / 共益費
152,757円
礼金
0ヶ月
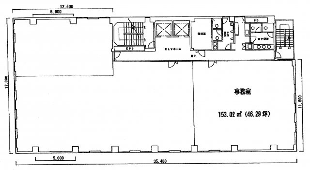
建物面積
46.29坪(153.02㎡)
築年月
1991年7月(築34年)

物件の特徴

  • エレベーター

セールスポイント

1階に銀行が入っているしっかりとしたビルです。

ポイント

形が良くレイアウトが組みやすいと思います。

基本情報

保証金
0ヶ月
敷引 / 償却
- / 0万円
建物面積
153.02㎡
所在階 / 階建て
9階 / 9階建
建物構造
鉄骨鉄筋コンクリート
築年月
1991年7月(築34年)
種別
事務所
契約期間
2年
保証会社 / 料金
- / -
現況
-
入居可能時期
即時
取引条件の
有効期限
2025年12月25日

設備条件

設備条件
  • 事務所可 / OAフロア / 重飲食不可 / 飲食不可 / 24時間利用可能 / 公営水道 / 公共下水 / エレベーター / 電気有 / 個別空調 / 機械警備 / 耐震構造 / 温水洗浄便座 / 男女トイレ別 / トイレ2ヶ所 / トイレ共同 / エアコン / 光ファイバー

その他

賃貸区分
一般
更新料
0万円
保険会社 / 料金
有  / -
取引態様
一般媒介
物件番号
72350762
情報更新日
2025年12月11日
次回更新予定日
2025年12月25日
取扱会社
  • 株式会社シンキング
  • 東京都新宿区新宿5丁目11-25 アソルティ新宿5丁目 2階
  • TEL:03-6274-8181
  • 東京都知事 (2) 第99049号
  • 公益社団法人全国宅地建物取引業協会
備考
貸主指定の保証会社と保証委託契約を締結して頂く場合がございます
ご契約時に仲介手数料として成約賃料の1ヶ月分及び消費税を申し受けます

新横浜KSビルの他の物件

  1. 401号室

    - (93.69㎡)

    49.88万円(1.76万円/坪)

  2. 403号室

    - (153.05㎡)

    61.11万円(1.32万円/坪)

  3. 7階

    - (487.00㎡)

    243.08万円(1.65万円/坪)

近隣の物件

  1. 新横浜ユニオンビルANNEX

    横浜市港北区新横浜3丁目

    - (82.65㎡)

    20.63万円(0.83万円/坪)

  2. 新横浜千歳観光第2ビル

    横浜市港北区新横浜2丁目

    - (142.08㎡)

    66.19万円(1.54万円/坪)

  3. アーバス新横浜(ABAS新横浜)

    横浜市港北区新横浜2丁目

    - (230.45㎡)

    107.36万円(1.54万円/坪)

  4. 新横浜交通ビル

    横浜市港北区新横浜3丁目

    - (330.28㎡)

    131.89万円(1.32万円/坪)

新横浜KSビル

新横浜KSビル

50.92万円

152,757円

46.29坪(153.02㎡)

お気軽にお問い合わせください

LINEからお問い合わせ 無料お問い合わせ

株式会社シンキング

03-6274-8181

9:00~18:00

(休:土日祝)