マルコーセンタービル

93.90万円 (1.28万円~1.76万円/坪)

管理/共益費 161,040円~212,080円

東京都台東区東上野2丁目14-1

山手線「上野」駅徒歩4分

山手線「御徒町」駅徒歩4分

都営大江戸線「新御徒町」駅徒歩2分

価格
93.90万円(1.28万円~1.76万円/坪) 管理/共益費 161,040円~212,080円
面積
73.20坪~96.40坪(242.00㎡~318.67㎡)
所在地
東京都台東区東上野2丁目14-1
築年
1981年5月(築44年)
駐車
-
交通

山手線上野」駅 徒歩4分

山手線御徒町」駅 徒歩4分

都営大江戸線新御徒町」駅 徒歩2分

マルコーセンタービルの基本情報

物件名
マルコーセンタービル
価格
93.90万円(1.28万円~1.76万円/坪)
管理/共益費
161,040円~212,080円
築年月
1981年5月(築44年)
所在地
東京都台東区東上野2丁目14-1
交通

山手線上野」駅 徒歩4分

山手線御徒町」駅 徒歩4分

都営大江戸線新御徒町」駅 徒歩2分

マルコーセンタービルの詳細情報

設備条件
  • エレベーター
  • 機械警備
  • 耐震構造
  • 光ファイバー
駐車場/月額
-/-
取引態様
一般媒介

マルコーセンタービルで募集中の物件

  1. 1階

    96.30坪 (318.34㎡)

    169.49万円(1.76万円/坪)

  2. 6階

    96.40坪 (318.67㎡)

    137.86万円(1.43万円/坪)

  3. 7階

    82.20坪 (271.74㎡)

    117.55万円(14300円/坪)

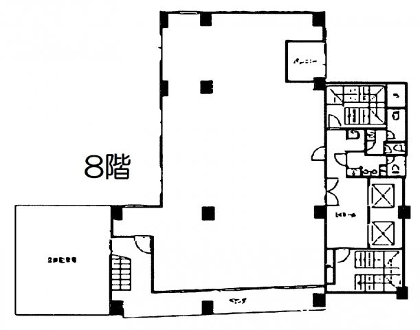
  4. 8階

    73.20坪 (242.00㎡)

    93.90万円(1.28万円/坪)

近隣の物件

  1. 台東区東上野1丁目

    0坪 (57.71㎡)

    27.5万円(1.58万円/坪)

  2. 台東区浅草橋2丁目

    0坪 (116.78㎡)

    124.33万円(3.52万円/坪)

  3. 台東区浅草3丁目

    0坪 (40.12㎡)

    30.33万円(2.5万円/坪)

  4. 台東区浅草橋1丁目

    0坪 (69.78㎡)

    26.95万円(1.28万円/坪)

よく見られている物件

  1. 板橋区上板橋2丁目

    - (63.73㎡)

    16.97万円

  2. 豊島区池袋4丁目

    - (50.50㎡)

    11.11万円

  3. 新宿区山吹町

    - (51.43㎡)

    13.86万円

  4. 豊島区池袋4丁目

    - (32.00㎡)

    6.82万円

マルコーセンタービル

お気軽にお問い合わせください

LINEからお問い合わせ 無料お問い合わせ

株式会社シンキング

03-6274-8181

9:00~18:00

(休:土日祝)