両国イースト

60.5万円 (1.06万円~1.07万円/坪)

管理/共益費 0円

東京都墨田区両国4丁目37-3

総武線「両国」駅徒歩1分

都営大江戸線「両国」駅徒歩2分

総武線「浅草橋」駅徒歩15分

価格
60.5万円(1.06万円~1.07万円/坪) 管理/共益費 0円
面積
56.74坪~58.93坪(187.60㎡~194.80㎡)
所在地
東京都墨田区両国4丁目37-3
築年
1991年11月(築34年)
駐車
-
交通

総武線両国」駅 徒歩1分

都営大江戸線両国」駅 徒歩2分

総武線浅草橋」駅 徒歩15分

両国イーストの基本情報

物件名
両国イースト
価格
60.5万円(1.06万円~1.07万円/坪)
管理/共益費
0円
築年月
1991年11月(築34年)
所在地
東京都墨田区両国4丁目37-3
交通

総武線両国」駅 徒歩1分

都営大江戸線両国」駅 徒歩2分

総武線浅草橋」駅 徒歩15分

両国イーストの詳細情報

設備条件
  • エレベーター
  • 機械警備
  • 耐震構造
  • インターネット対応
駐車場/月額
-/-
取引態様
一般媒介

両国イーストで募集中の物件

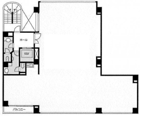
  1. 2階

    56.74坪 (187.60㎡)

    60.5万円(1.07万円/坪)

  2. 4階

    58.93坪 (194.80㎡)

    62.7万円(1.06万円/坪)

近隣の物件

  1. 墨田区千歳2丁目

    0坪 (94.28㎡)

    25.3万円(0.89万円/坪)

  2. 墨田区横網1丁目

    - (187.10㎡)

    67.92万円(1.2万円/坪)

  3. 墨田区緑4丁目

    - (34.54㎡)

    9.9万円(0.95万円/坪)

  4. 墨田区錦糸2丁目

    - (40.00㎡)

    10.12万円(0.84万円/坪)

よく見られている物件

  1. 港区新橋5丁目

    - (124.99㎡)

    47.83万円

  2. 新宿区四谷三栄町

    - (66.12㎡)

    22万円

  3. 新宿区新宿2丁目

    - (30.00㎡)

    15.4万円

  4. 千代田区内神田1丁目

    - (361.16㎡)

    120.18万円

両国イースト

お気軽にお問い合わせください

LINEからお問い合わせ 無料お問い合わせ

株式会社シンキング

03-6274-8181

9:00~18:00

(休:土日祝)