グローバルビュー浦和

49.30万円 (1.76万円~2.75万円/坪) 管理/共益費 0円

埼玉県さいたま市浦和区高砂2丁目1-19

京浜東北線「浦和」駅徒歩4分

湘南新宿ライン宇須「浦和」駅徒歩4分

高崎線「浦和」駅徒歩4分

価格
49.30万円(1.76万円~2.75万円/坪) 管理/共益費 0円
面積
28.01坪~60.03坪(92.60㎡~198.47㎡)
所在地
埼玉県さいたま市浦和区高砂2丁目1-19
築年
1998年9月(築27年)
駐車
-
交通

京浜東北線浦和」駅 徒歩4分

湘南新宿ライン宇須浦和」駅 徒歩4分

高崎線浦和」駅 徒歩4分

グローバルビュー浦和の基本情報

物件名
グローバルビュー浦和
価格
49.30万円(1.76万円~2.75万円/坪)
管理/共益費
0円
築年月
1998年9月(築27年)
所在地
埼玉県さいたま市浦和区高砂2丁目1-19
交通

京浜東北線浦和」駅 徒歩4分

湘南新宿ライン宇須浦和」駅 徒歩4分

高崎線浦和」駅 徒歩4分

グローバルビュー浦和の詳細情報

設備条件
  • エレベーター
  • 耐震構造
駐車場/月額
-/-
取引態様
一般媒介

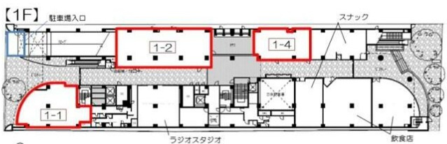
グローバルビュー浦和で募集中の物件

  1. 1-4

    28.01坪 (92.60㎡)

    49.30万円(1.76万円/坪)

  2. 1-2

    60.03坪 (198.47㎡)

    105.66万円(1.76万円/坪)

  3. 1-1

    42.15坪 (139.35㎡)

    115.92万円(2.75万円/坪)

グローバルビュー浦和

お気軽にお問い合わせください

LINEからお問い合わせ 無料お問い合わせ

株式会社シンキング

03-6274-8181

9:00~18:00

(休:土日祝)