川上ビル B1階

128.57万円(1.65万円/坪)

管理 / 共益費 171,424円

東京都渋谷区恵比寿西2丁目6-11

山手線「恵比寿」駅徒歩7分

日比谷線「恵比寿」駅徒歩7分

東急東横線「代官山」駅徒歩5分

賃料 / 坪単価
128.57万円 / 1.65万円
敷金(保証金)
6ヶ月(-)
所在地
東京都渋谷区恵比寿西2丁目6-11
交通

山手線恵比寿」駅 徒歩7分

日比谷線恵比寿」駅 徒歩7分

東急東横線代官山」駅 徒歩5分

管理 / 共益費
171,424円
礼金
1ヶ月
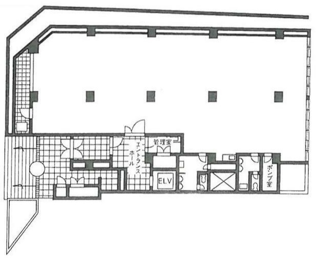
建物面積
77.92坪(257.59㎡)
築年月
1991年9月(築34年)

物件の特徴

  • エレベーター

セールスポイント

恵比寿駅&代官山駅 利用可◎実質1階の事務所区画です!

基本情報

保証金
-
敷引 / 償却
- / -
建物面積
257.59㎡
所在階 / 階建て
地下1階 / 7階建 地下1階
建物構造
鉄骨鉄筋コンクリート
築年月
1991年9月(築34年)
種別
事務所
契約期間
2年
保証会社 / 料金
- / -
現況
賃貸中
入居可能時期
相談
取引条件の
有効期限
2026年03月17日

設備条件

設備条件
  • 事務所可 / 法人可 / OAフロア / 重飲食不可 / 飲食不可 / 公営水道 / 公共下水 / エレベーター / 電気有 / 個別空調 / 機械警備 / 耐震構造 / 男女トイレ別 / トイレ2ヶ所 / エアコン / 光ファイバー

その他

賃貸区分
一般
更新料
1ヶ月(新賃料)
保険会社 / 料金
有  / -
取引態様
一般媒介
物件番号
94231878
管理コード
03
情報更新日
2026年03月03日
次回更新予定日
2026年03月17日
取扱会社
  • 株式会社シンキング
  • 東京都新宿区新宿5丁目11-25 アソルティ新宿5丁目 2階
  • TEL:03-6274-8181
  • 東京都知事 (2) 第99049号
  • 公益社団法人全国宅地建物取引業協会
備考
■貸主指定の保証会社と保証委託契約を締結して頂く場合がございます
■火災保険加入必須
■ビルが斜面にあるため、実質1階となります(エントランス入口階)
■ドライエリアあり
■入居可能日:6月下旬予定
■レンタルスペース・貸会議室・店舗・民泊不可
※ご契約時に仲介手数料として成約賃料の1ヶ月分及び消費税を申し受けます

近隣の物件

  1. TAKIビル表参道

    渋谷区神宮前5丁目

    - (191.07㎡)

    171.64万円(2.97万円/坪)

  2. アカデミービル

    渋谷区千駄ヶ谷3丁目

    - (57.79㎡)

    34.65万円(1.98万円/坪)

  3. ダイナックスビル

    渋谷区恵比寿4丁目

    - (126.24㎡)

    84.15万円(2.2万円/坪)

  4. 第8SYビル

    渋谷区神宮前6丁目

    - (137.19㎡)

    73.04万円(1.76万円/坪)

よく見られている物件

  1. ル・グラシエルBLDG.2

    港区新橋5丁目

    - (124.99㎡)

    47.83万円

  2. 竹田ビル

    新宿区四谷三栄町

    - (66.12㎡)

    22万円

  3. パンチョスタワー

    新宿区新宿2丁目

    - (30.00㎡)

    15.4万円

  4. 四国第二ビル

    千代田区内神田1丁目

    - (361.16㎡)

    120.18万円

川上ビル

川上ビル

128.57万円

171,424円

77.92坪(257.59㎡)

お気軽にお問い合わせください

LINEからお問い合わせ 無料お問い合わせ

株式会社シンキング

03-6274-8181

9:00~18:00

(休:土日祝)